热熔焊机对接连接是PE管道连接最常用方法,Φ20以上(壁厚不小于2.3mm)的管材和管件之间都可采用该方法进行连接,其接头结构如下:
热熔对接连接的原理:PE管道是利用PE树脂经挤出成型而得到的。如果在一定的压力和温度下,PE树脂分子可相互连接成更长的分子链,从而使管材连接成为一体。由此可知,该方法具有以下优点:
①.管道熔接为分子之间的结合,因而接口极为可靠;
②.该方法只需使用专用设备,无须任何辅助材料,成本低廉。
③.操作方法简单,易学易懂

热熔对接连接的过程
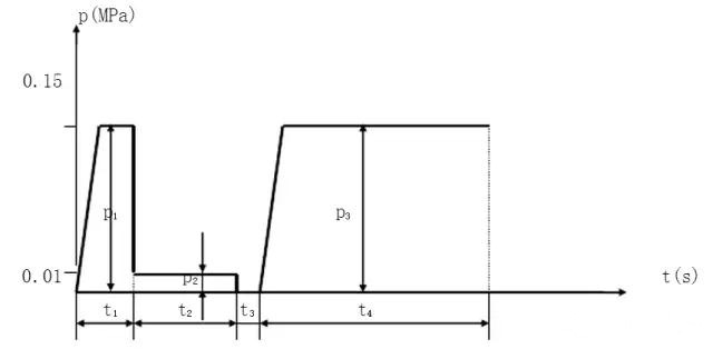
热熔焊接连接过程涉及到三个要素,即加热板温度、加热压力和加热时间。
①. 加热板温度
对于HDPE、MDPE管道,其熔接时加热板温度210±10℃,薄壁管材温度适当升高,靠上限;厚壁管材温度适当降低,靠下限;大风或寒冷天气施工时温度适当升高。
②. 加热压力和加热时间
加热压力和加热时间按照熔接过程曲线图:

